星空综合app官方正版下载免费安装
LUOYANG HENENG ELECTRIC CO.,LTD
厂家热线:13803887028
售后热线:0379-64327397

浏览次数:10187次
所属分类:传动系统试验台
在该试验台上,能够实现对匹配发动机功率为50kw-630kw的车辆驱动桥总成及零部件,进行功率范围内的性能试验、寿命试验、换挡性能试验。与室外道路试验相比,在试验台上进行驱动桥总成的耐久试验具有安装快捷,测试项目多、调整方便、自动化程度高、实时性强且完可靠的特点。
发布日期:2021-10-15 16:07:09
星空体育直播入口电气依据《JB/T 5929-1991工程机械驱动桥可靠性试验方法》、《QC/T 533-1999汽车驱动桥台架试验方法》、《QC/T 534-1999汽车驱动桥台架试验评价指标》、 客户企业提供的技术要求,为用户定做能量回馈型车辆驱动桥总成性能及耐久性试验台。我们采用变频交流电力测功机模拟车辆发动机实际工况,用电力测功机模拟驱动桥道路负载,从而实现对驱动桥性能的真实检验。在该试验台上,能够实现对匹配发动机功率为50kw-900kw的工程机械、军用车辆驱动桥总成及零部件,进行功率范围内的性能试验、寿命试验、换挡性能试验。与室外道路试验相比,在试验台上进行驱动桥总成的耐久试验具有安装快捷,测试项目多、调整方便、自动化程度高、实时性强且完可靠的点。
一、试验类型
1、驱动桥总成(含行车制动器、主被动伞齿轮,锥轴承,半轴,密封圈等)的回转疲劳(动扭)试验功能。
2、驱动桥正反转试验功能。
3、驱动桥分载荷谱加载性能及耐久试验。(载荷谱可设定、载荷谱编辑生成)
4、驱动桥总成中的半轴的回转疲劳试验功能(单做半轴试验,试件需要特别制作)。
5、驱动桥总成中的主被动齿轮的疲劳试验功能(单做主被动齿轮试验,试件需要特别制作)。
6、驱动桥总成中的轴承的疲劳试验功能(单做轴承试验,试件需要特别制作)。
7、用户自定义的稳态试验
8、用户自定义的动态开发试验、用户自定义的动态循环工况试验。
二、案例展示
1、动力传动试验台系统有以下主要几部分构成:四象限变频器,交流电力测功机,整流回馈装置,温控装置,操作台控制系统。
2、动力传动组合试验系统用于动力传动及其辅助系统各组件在装车之前进行空载及负载状态下的试运转,解决装配初期的隐患及监测相应部件的性能。
动力传动组合试验系统满足综合传动装置的相应出厂试验要求和发动机、变矩器等组件进厂复验的试验要求。
动力传动组合试验系统能够进行冷却系、润滑系、液压系统及各管路工作状态检查,动力传动系统一体化空载运转性能检查,动力传动监控系统功能检查,以及各部分和管路的密封检查等,主要包含以下功能:
1) 完成动力传动装置及辅助系统的组装、集成:设计专用的动力传动装置及辅助系统组装的台架,可固定发动机、综合传动装置,并顺利对接;
2) 实现动力传动装置总成的空载启动试验:配备油源、加温设备、外接空气滤清器、排烟装置、启动电源等;
3) 实现动力传动装置总成的整体装配质量检查:跑、冒、滴、漏、松;
4) 实现发动机基本性能参数的测试;
5) 实现传动系统的空载性能试验、功能检查等;
6) 车载各传感器信号在不同工况下的工作状态和信号检测;
7) 试验数据的计算机采集、显示等。
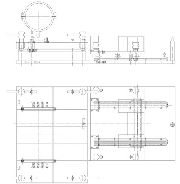
动力传动组合试验系统布置方案如图所示:
服务宗旨:“以质量求生存,以服务赢市场”,如果您对我们的产品感兴趣,欢迎咨询!
*请认真填写需求信息,我们会在24小时内与您联系
联系人:张经理 潘经理
手机:13803887028 13938842660
公司地址:河南省洛阳市高新区轴承产业集聚区
邮箱:henengdq@126.com
全国咨询热线
13803887028 0379-64327397